Edificio Arcoterrazado [StF]

UBICACIÓN: Santa Fe 2470, Rosario, Rosario, Argentina.
 
PROYECTO
Matías Imbern
Marcelo Mirani
 
EQUIPO
Andrés Bertoni [Líder de Equipo]
María Pía Forno [Coordinador de Proyecto]
Martina Taddeo [Imágenes / Gráfica]
Lucio Herrero [Gráfica]
Addis Magalí Hoffmann [Imágenes]
  
AÑO 2024
 
MEMORIA DESCRIPTIVA:

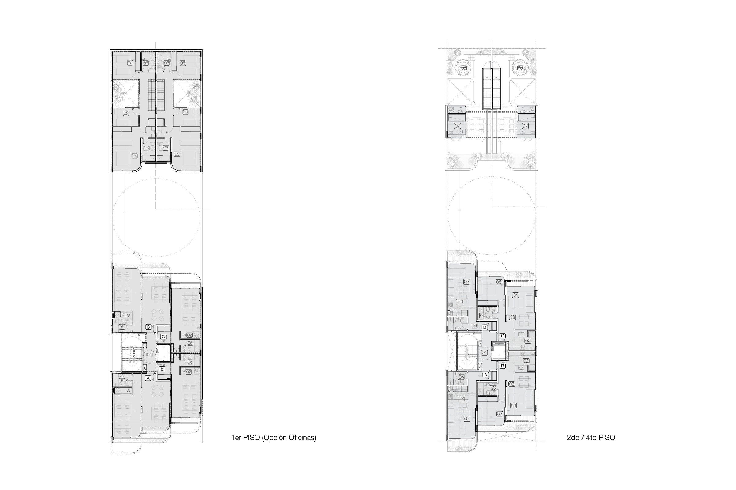
El proyecto se encuentra ubicado contiguo al Área Central sobre Avenida Santa Fe, una arteria de circulación importante en el tejido de la ciudad de Rosario, y a dos cuadras del Bv. Oroño, otro importante corredor urbano característico de la ciudad. La masa edilicia se organiza en torno a un patio central con espacios comunes en planta baja, ubicado al norte en el centro del lote, y se compone de una torre de unidades de vivienda de 10 pisos al frente, y un volumen de 2 niveles con al contrafrente.

 

El proyecto, como su nombre lo indica, se caracteriza principalmente por la fuerte presencia de arcos (elemento arquitecto y constructivo que tradicionalmente ha sido utilizado para soportar cargas) y por sus amplios balcones aterrazados de doble altura.

 

Aquí la utilización del arco adquiere un sentido arquitectónico formal, trasladando el dinamismo y la suavidad propia de su forma geométrica no solo a la vista de sus fachadas y medianeras, sino también en las plantas de unidades y espacios comunes. Pero además la utilización del medio arco favorece a soportar las cargas en voladizo propias de sus balcones de gran profundidad al funcionar como una especie de ménsula, y replicando la forma del diagrama de momento flector de un voladizo. 

 

Estos balcones, que llegan a medir algunos hasta 1.80 metros de profundidad por 3 metros de ancho, se intercalan en planta y en altura generando un patrón de repetición de lleno y vacío, y garantiza que todos los balcones posean una doble altura. Esta lógica de intercalado se traslada al interior de las unidades de viviendas y es la que permite ofrecer una gran cantidad de variaciones tipológicas. Del primer al cuarto piso, presenta unidades tipo loft y departamentos de un dormitorio, con dos alternativas de cada planta según si es piso par o impar. De quinto a décimo presenta departamentos semipiso de dos dormitorios, también con sus respectivas alternativas en pisos pares e impares. En el volumen del contrafrente, se acomodan dos casas de dos niveles de altura, terrazas accesibles  y patios internos.

 

Más allá de hacer alusión a sus amplios balcones en doble altura, el concepto de aterrazar cobra otro sentido. Por definición, aterrazar implica escalonar la superficie de una pendiente en espacios accesibles. En este caso, en lugar de aterrazar un plano horizontal, se aplica esta operación al plano vertical del frente y contrafrente, generando un retranqueo con respecto a la línea de edificación que permite orientar parcialmente ambas fachadas al Este, hacia Avenida Santa Fe.